STANDORT
Chrzanów, Polen
VERMESSUNGSAUSRÜSTUNG
Riegl Vz-400, Leica TCRA 1101 Plus Totalstation, Kamera Canon 5D Mark II.
GESAMTE VERBRACHTE ZEIT
3 Tage vor Ort, 20 Tage Bearbeitung im Büro.
ENDPRODUKT
Registrierte Punktewolken, Mesh-Modelle, Orthofotos, Fachwissen im Bereich Denkmalschutz und Bauwesen.
Brücken und Viadukte in der Nähe von Chrzanów
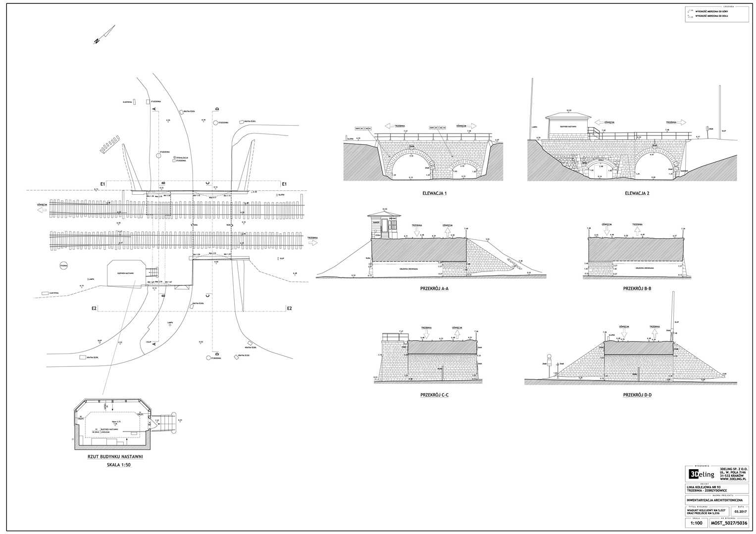
Die Arbeiten wurden von PLK im Rahmen der Modernisierung der Bahnstrecke Oświęcim-Trzebinia in Auftrag gegeben. Dieser Auftrag umfasste die umfangreiche Aufzeichnung von 4 Brücken- und Viaduktstrukturen. Die Objekte stammten aus der ursprünglichen Konstruktion der Strecke. Aus diesem Grund wurden alle unsere Arbeiten gemäß den strengen Richtlinien des Denkmalpflegers durchgeführt.
Die Strukturen wurden umfangreich gescannt und fotografiert. Dadurch konnte ein Mesh-Modell in Kombination mit hochauflösenden Texturen generiert werden.
Basierend auf diesem hochdetaillierten Datensatz haben wir metrische / Orthophotos sowie traditionelle 2D-Pläne erstellt. Die letzten erhaltenen Schnitte und Höhenlinien innerhalb von CAD. Die produzierten Daten lieferten dem Kunden sowohl Informationen über den Bauzustand als auch über den Zustand, die dann als Grundlage für Restaurierungs- und Konservierungsarbeiten verwendet wurden.
Kategorien:













