STANDORT
Baterpol, Polen
VERMESSUNGSAUSRÜSTUNG
Scanner Z+F Imager 5010C, Leica TCRA 1101 plus Total Station
GESAMTE VERBRACHTE ZEIT
1 Tag vor Ort (50 Scans)
2 Personen, etwa 3 Tage Verarbeitung im Büro.
ENDPRODUKT
Analyse von Verformung und Fundament
Rotary-Ofen-Modell
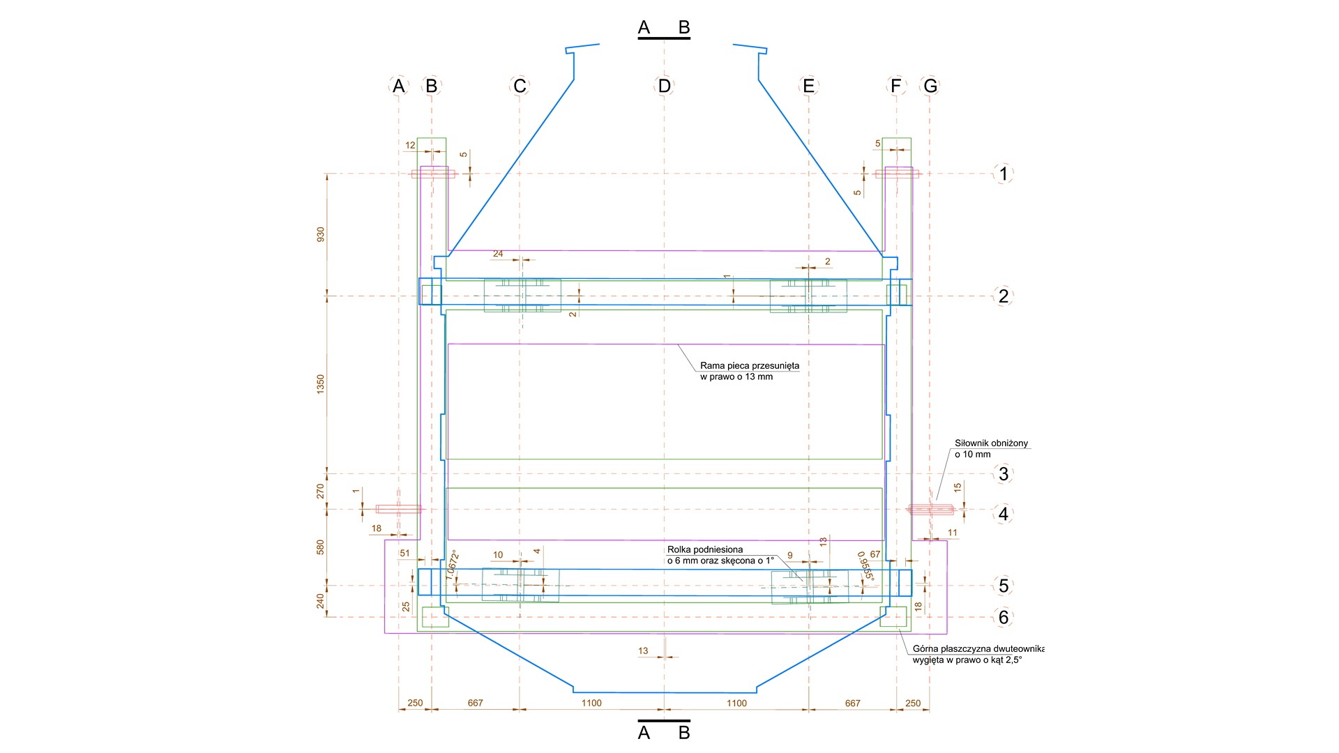
Das Projekt befasste sich mit der Untersuchung der Verformung und des Fundaments eines Bleischmelzers. Die Messungen standen im Zusammenhang mit dem Versagen des Ofenpositionierungsmechanismus. Das Objekt wurde in zwei Betriebszuständen (Positionen) gescannt – während dem Aufheizen und beim Abfluss von flüssigem Metall – und dann einer geometrischen Analyse unterzogen. Wir untersuchten die Verformung des Ofens selbst und die Verschiebung der Elemente, die zur Ofenverlagerung führten.
Die Studie ergab, dass eines der Fundamente des Bauwerks, im Vergleich zu anderen, zu niedrig errichtet wurde. Der Bericht schlug eine Lösung für das festgestellte Problem vor.
Kategorien:











