STANDORT
London, UK
VERMESSUNGSAUSRÜSTUNG
Scanner ZF Imager 5010, TCRP 1201 Plus
GESAMTE ZEIT VERBRACHT
10 Tage
ENDPRODUKT
registrierter Punktwolke, 2D CAD-Dokumentation
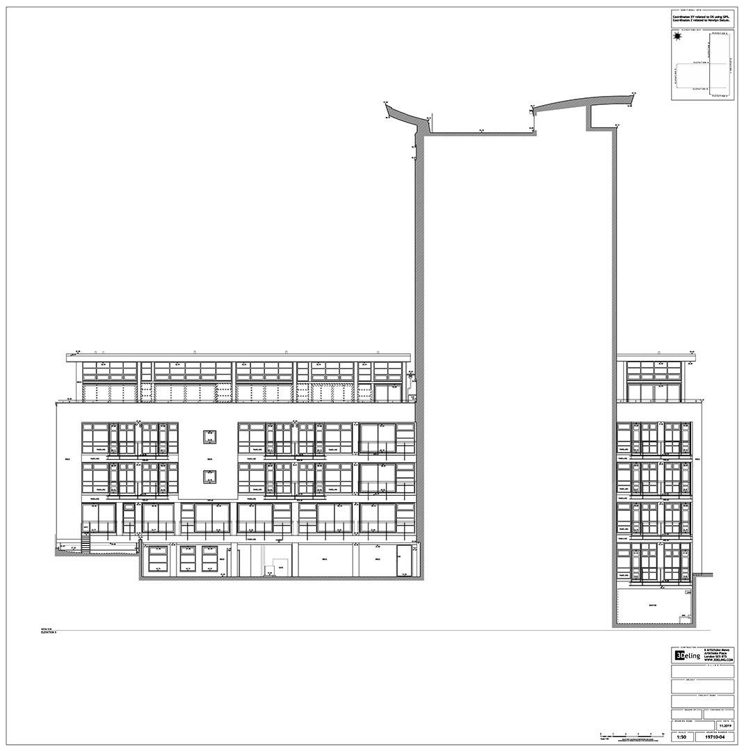
2D-CAD-Dokumentation der Fassaden eines Wohngebäudes in London
Digitalisierung mit präziser 2D-CAD-Dokumentation der Fassaden eines Wohngebäudes in London. Dieses Projekt ist ein weiteres Beispiel dafür, wie die Vermessungsdienste von 3Deling eine Vielzahl von Technologien einsetzen, einschließlich Laserscanning und Drohnen, um ein Gebäude und seine Merkmale genau zu erfassen. In diesem Fall handelte es sich um die Außenflächen eines Apartmentblocks in London. Dank der Bemühungen unserer professionellen Ingenieure war der Scanning-Prozess wie immer nicht-invasiv, schnell durchgeführt und mit minimaler Störung der Mieter verbunden. Diese gemessenen Gebäudevermessungsdaten dienten dann als Grundlage für 2D-Pläne der Fassaden.
Wir haben eine Fachberatung bereitgestellt, um einen Arbeitsumfang zu erstellen, der den Projektanforderungen und dem gewünschten Detaillierungsgrad entspricht. Die Bereitstellung einer hohen LOD war bei diesem Projekt wichtig, da sie für den geplanten Austausch der das Gebäude bedeckenden Verkleidungspaneele angefordert wurde. Der Auftragnehmer gab vor, dass eine Laserscan-Vermessung das Gebäude in 2D kartieren muss, einschließlich Fenster, Struktur- und Verkleidungsmerkmale. Eine solch detaillierte Dokumentation war für die geplante Renovierung dieses Objekts unerlässlich, da das Projekt auf vorgefertigten Verkleidungspaneelen basierte. Deshalb mussten die bestellten 2D-Pläne eine perfekte Passform neuer Fassadenkomponenten unterstützen.
Kategorien:



















