STANDORT
Gniew, Polen
VERMESSUNGSAUSRÜSTUNG
Scanner Riegl VZ-400, Leica TCRA 1101 plus Totalstation
GESAMTE VERBRACHTE ZEIT
8 Tage Zwei-Personen-Team, 45 Tage für die Datenverarbeitung
ENDPRODUKT
Registrierte Punktwolke, TruViews, Grundrisse, Schnitte und Aufrisszeichnungen.
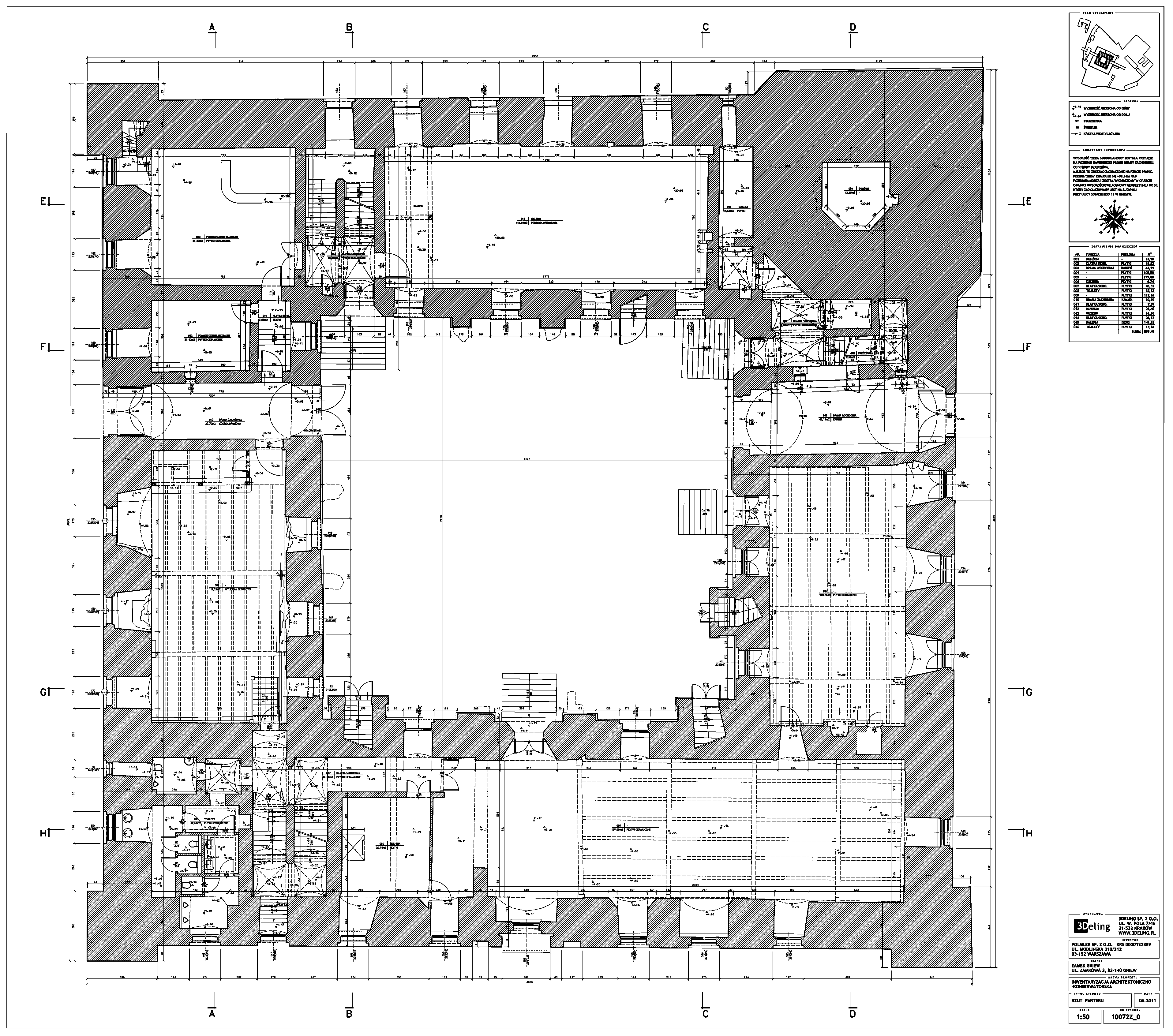
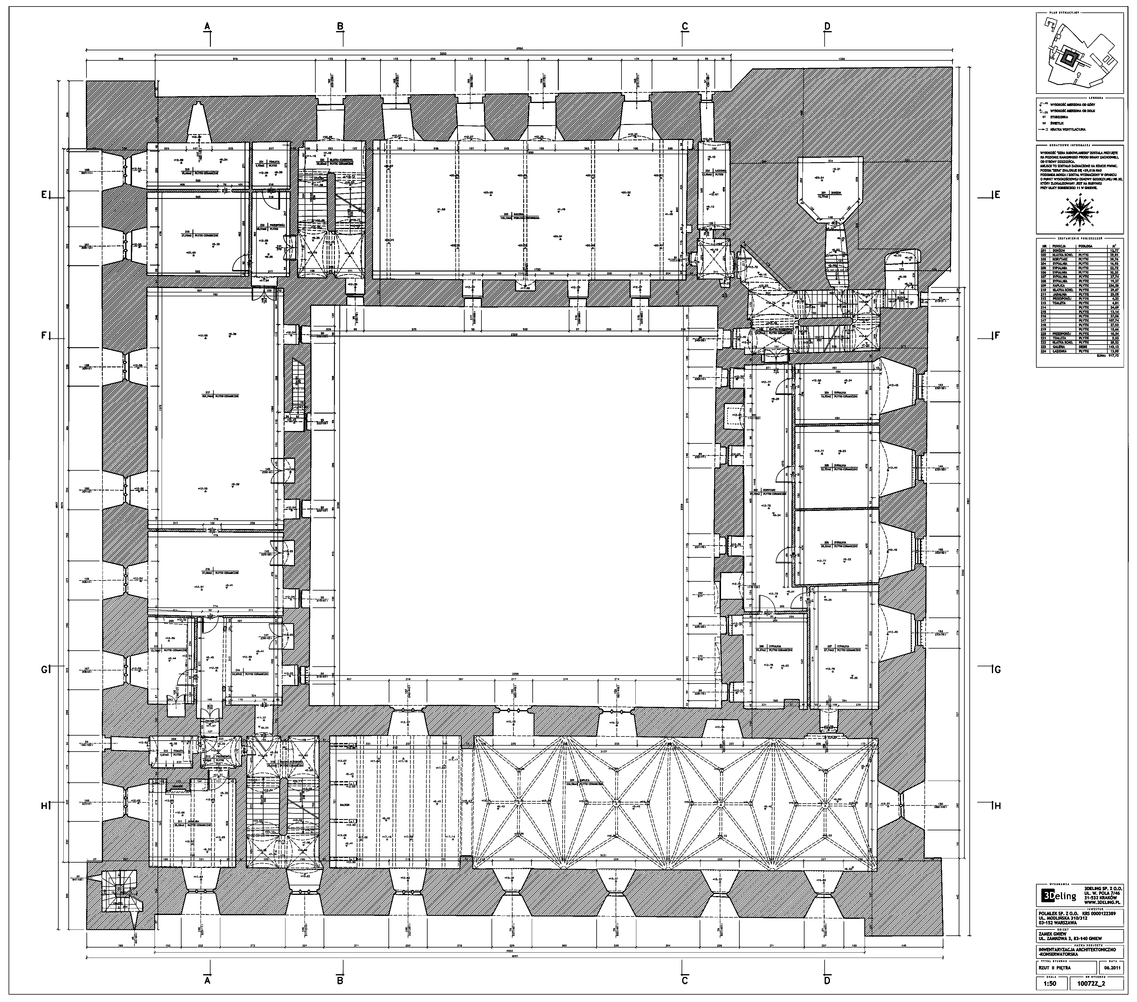
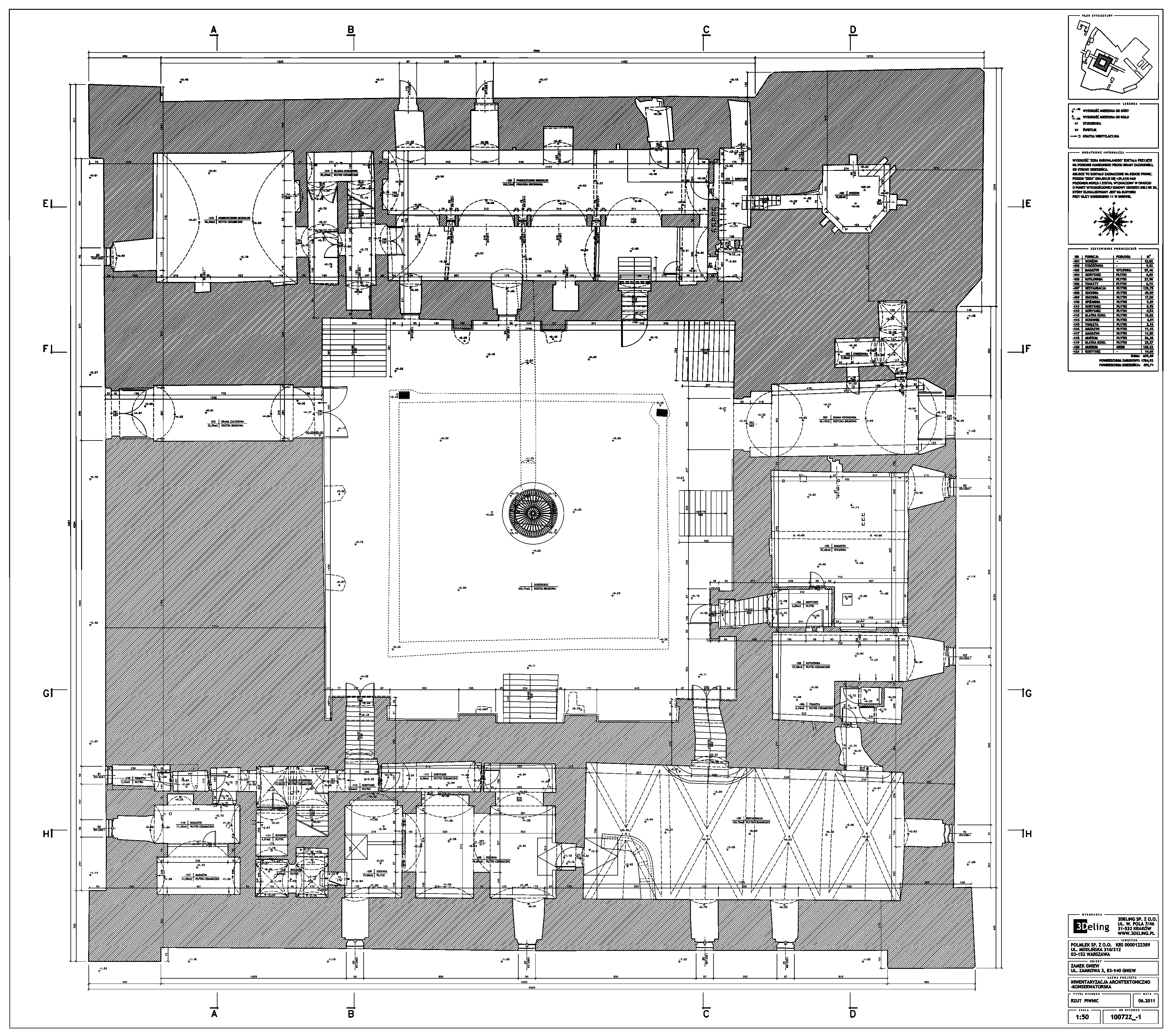
Laserscanning von Castle Gniew
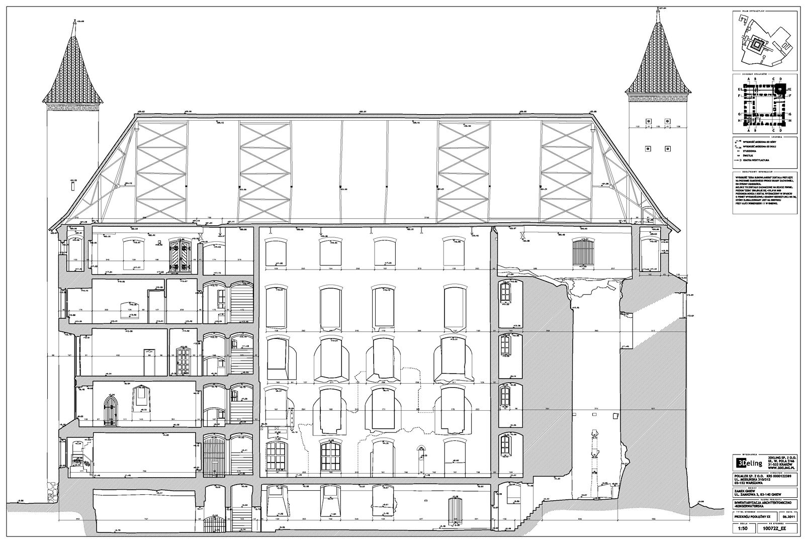
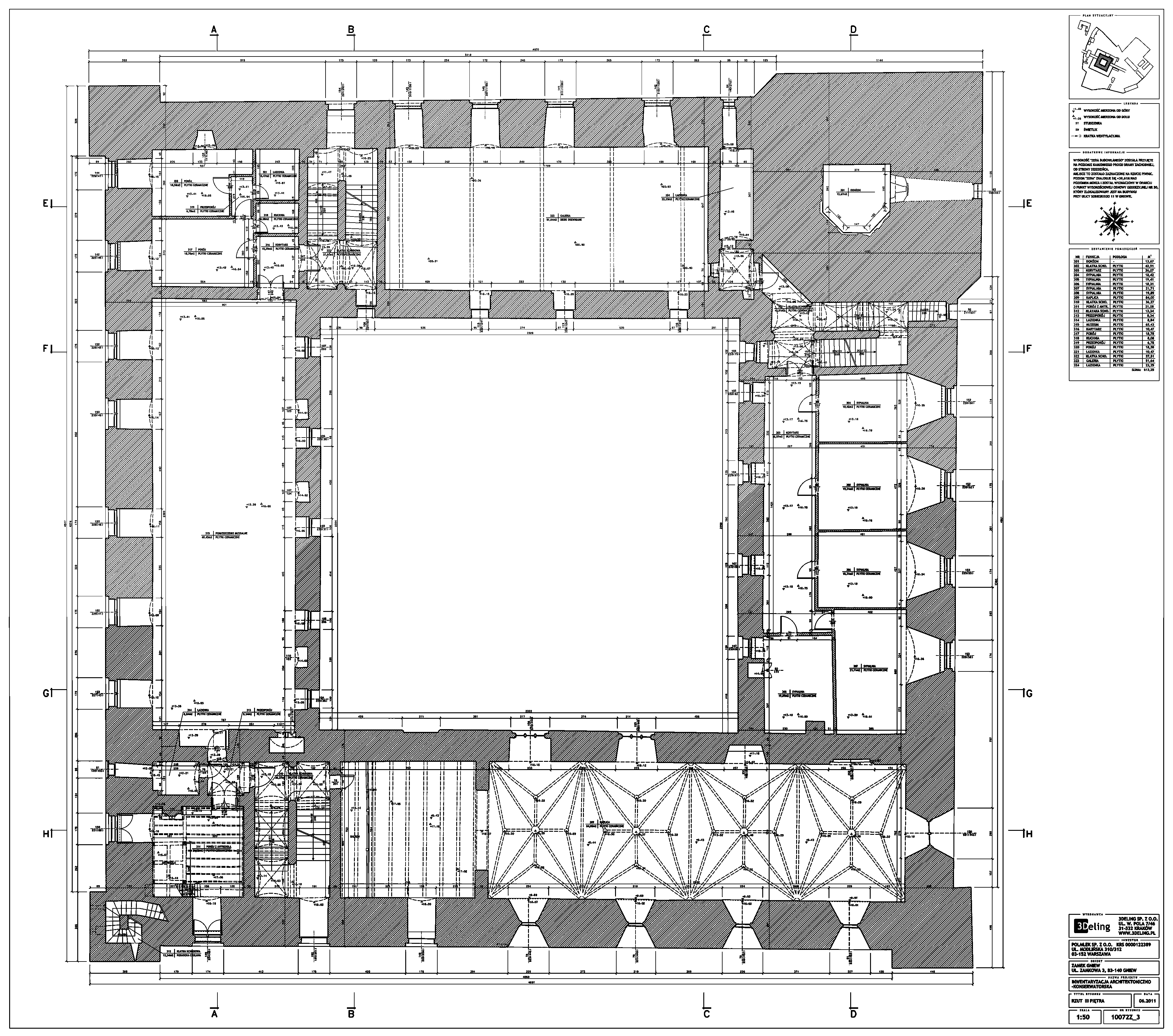
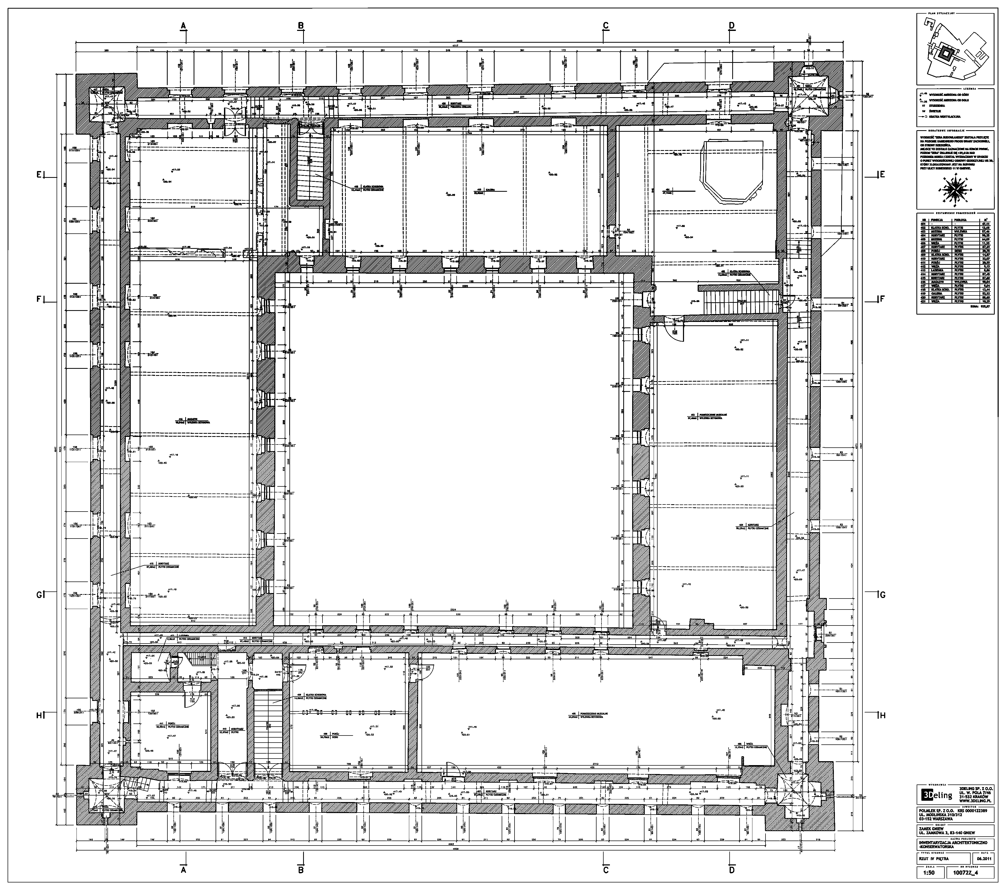
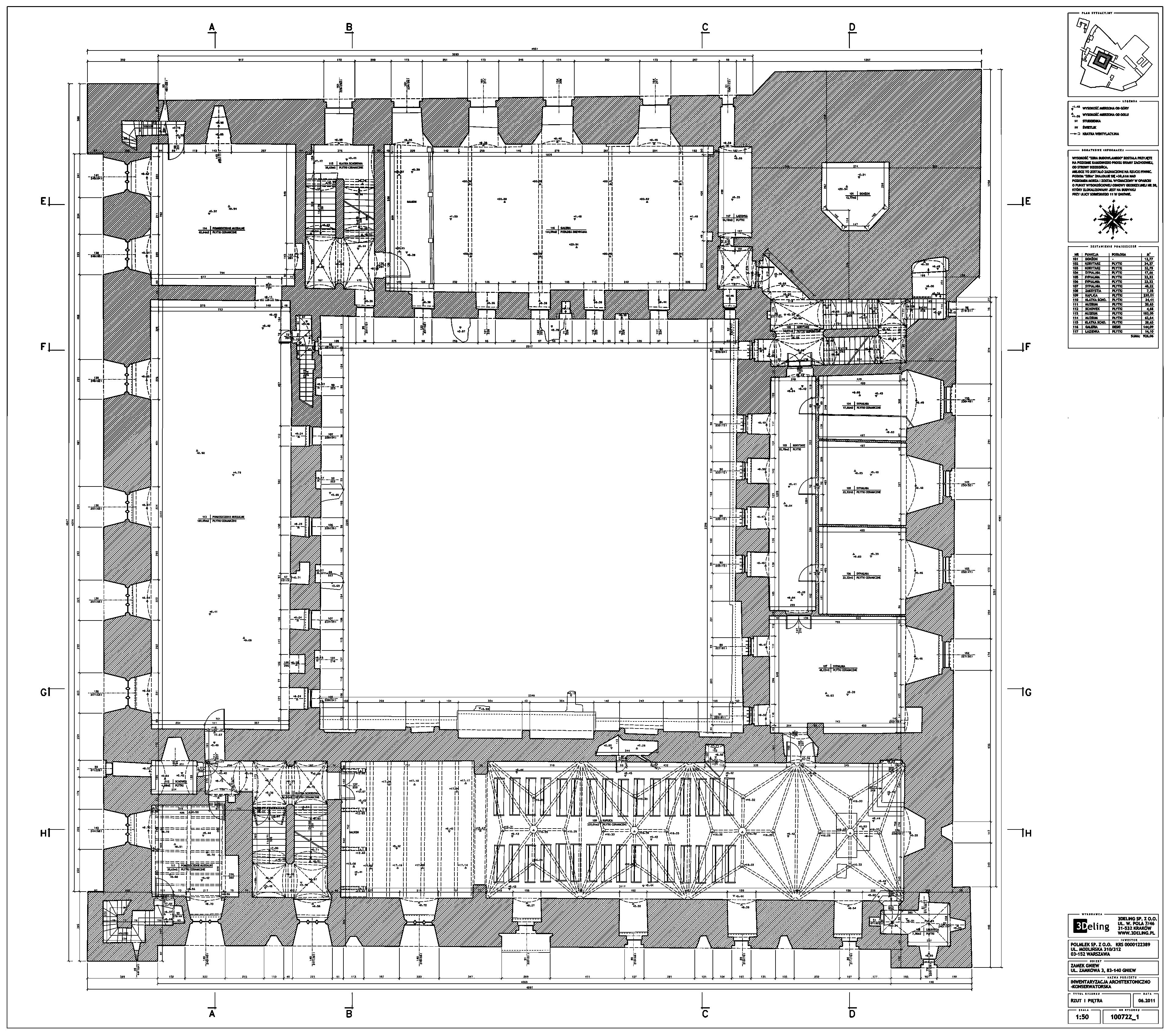
Im frühen Jahr 2011 erhielt 3Deling den Auftrag, die mittelalterliche Burg in Gniew, Polen, mittels Laser zu scannen. Die Gebäude wurden umfassend vom Keller bis zum Dachboden gescannt. Insgesamt wurden über 800 einzelne Scans in ein gemeinsames Koordinatensystem registriert. Die Punktwolke wurde dann genutzt, um einen umfassenden 2D-Datensatz für die Burg zu erstellen, einschließlich Grundrissen, Schnitten und Höhenzeichnungen.
Dank des Laserscannens konnten wir vollständige räumliche Informationen über dieses weitläufige historische Gebäude sammeln. Die Genauigkeit des Scannens wurde durch Kontrolljustierungsberichte bestätigt. Die 2D-Zeichnungen wurden in Bentley MicroStation V8i mit dem Leica CloudWorx-Plugin erstellt, das uns ermöglicht, die Punktwolke in einer CAD-Umgebung anzuzeigen.
Kategorien:
































