STANDORT
Toruń, Polen
VERMESSUNGSAUSRÜSTUNG
Scanner Z+F Imager 5006, Leica TCRA 1101 plus Totalstation, Kamera Canon 3D Mark II
GESAMTE VERBRACHTE ZEIT
2 Tage vor Ort (200 Scans), ca. 20 Tage Bearbeitung im Büro
ENDPRODUKT
Punktwolke in Intensitätsfarben, 2D-CAD-Zeichnungen, Orthofotos in RGB-Farben, Visualisierung
Die Deutschordensburg in Torun
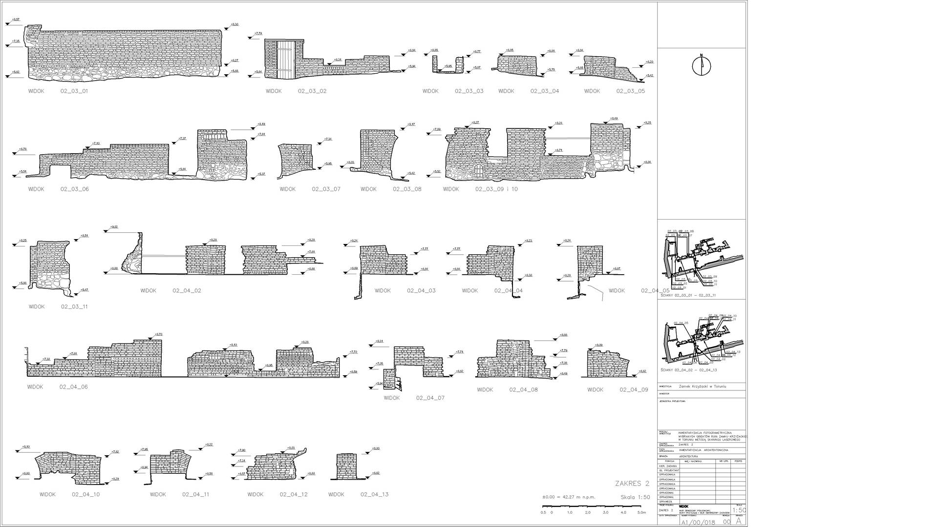
3Deling wurde beauftragt, die Deutschordensburg aus dem 13. Jahrhundert in Torun als kulturelles Erbe zu vermessen. Neben der Erfassung des Gebäudes, das seit 1454 größtenteils in Ruinen liegt, beauftragte der Kunde metrische Bilder und Orthofotos einzelner Segmente der Wände in Intensitätsfarben aus der Punktwolke.
2D-Höhenebenen der zerstörten Wände wurden aus dem Datensatz erstellt, wobei einzelne Steine dargestellt wurden. Es wurden auch Visualisierungen aus der Punktwolke erstellt, die die Überreste der Burg darstellen. Die Hauptmauer von der Seite der Weichsel (der höchste und prächtigste Bereich) wurde zusätzlich in RGB-Farben gescannt.
Kategorien:

















