STANDORT
Lwiw, Ukraine
VERMESSUNGSAUSRÜSTUNG
Scanner Z+F Imager 5006, Leica TCRA 1101 Plus Totalstation
GESAMTE VERBRACHTE ZEIT
3 Tage vor Ort, etwa 75 Tage Bearbeitung im Büro.
ENDPRODUKT
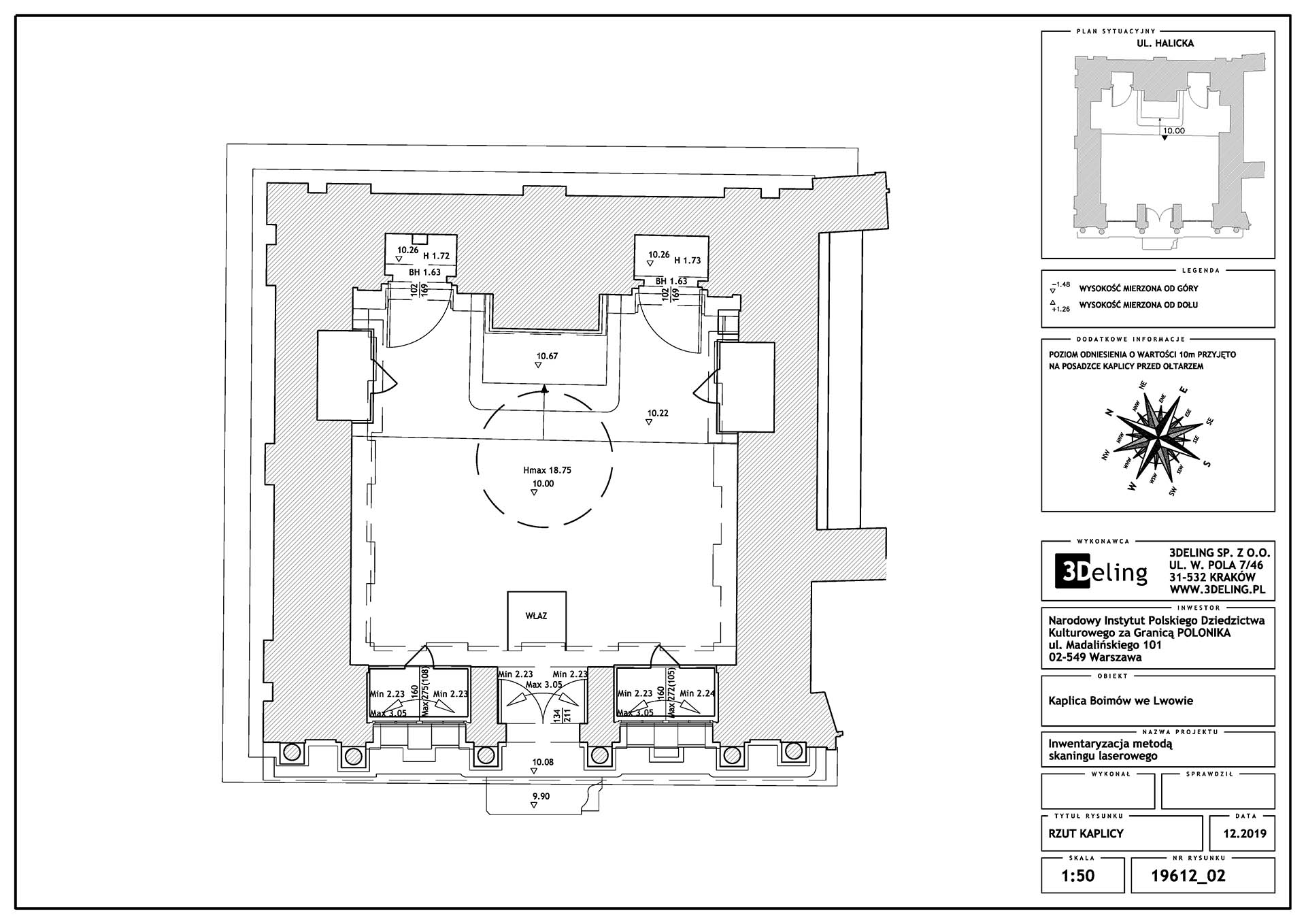
Punktwolke, 2D CAD-Dokumentation, BIM-Modell.
3D-Digitalisierung der Boim-Kapelle
Dieses Projekt, das vom Institut Polonika in Auftrag gegeben und aus öffentlichen Mitteln finanziert wurde, hatte zum Ziel, eine Bestandsaufnahme dieses Renaissancegebäudes durchzuführen. Als Ergebnis lieferten wir eine 2D-Dokumentation der Kapelle, einschließlich Vektorzeichnungen aller, auch der kleinsten architektonischen Details. Wir erzeugten auch ein hochauflösendes, texturiertes (px c.a. 1 mm) High-Poly-Mesh-Modell.
Während der Vermessung nutzten wir neben der regulären Laserscanning-Technologie auch eine Drohne und eine Kamera, die an einem Mast befestigt war. Zusätzlich montierten wir ein spezielles Gerüst innerhalb der Kapelle, um alle Details des Innenraums zu erfassen. Auf diese Weise gelang es uns, präzise Laserscan- und fotografische Daten zu erhalten. Später verarbeiteten wir diese Eingangsdaten, um eine photogrammetrische Dokumentation der Kapelle sowie eine detaillierte 2D-CAD-Dokumentation und ein High-Poly-3D-Mesh-Modell zu erstellten.
Kategorien:























